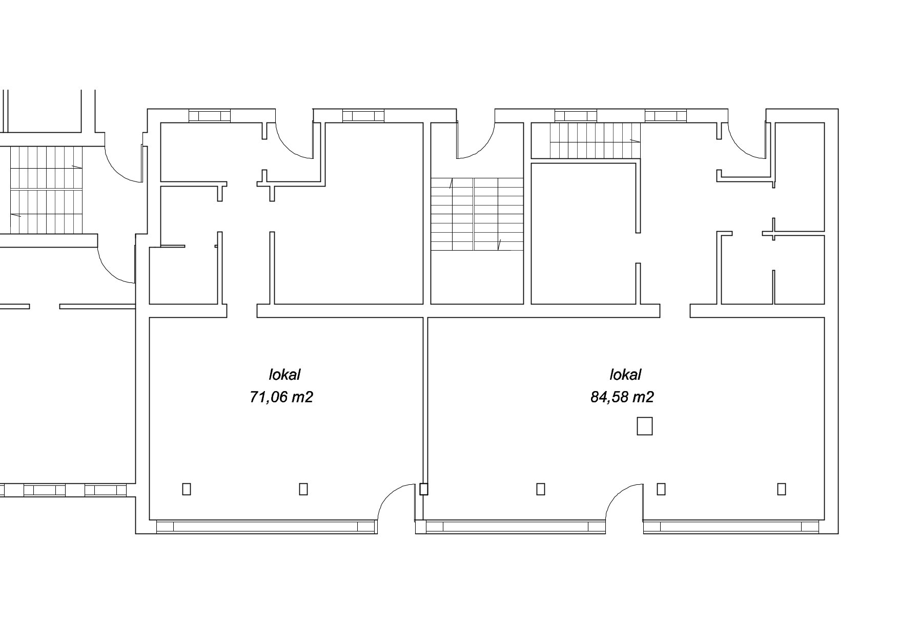
DO WYNAJĘCIA LOKAL UŻYTKOWY O POW. 84,58 M2 PRZYLEGAJĄCY DO BUDYNKU MIESZKALNEGO PRZY UL. BOCIANOWO 20 W BYDGOSZCZY

Dane kontaktowe:
Imię i nazwisko:  Elżbieta Służewicz
Telefon:  668 217 712